Menu
Un projet réalisé par :LAPS  Architecte à Raves

Réhabilitation et transformation d'une ferme vosgienne

 Raves - 88
LAPS
Accueil Projets Réhabilitation et transformation d'une ferme vosgienne

Projet de rénovation et d'aménagement intérieur, extension de la partie habitable d'une ancienne ferme, transformation de l'espace destiné aux activités agricoles en habitation, realisation d'un appartement attenant.

Réhabilitation et transformation d'une ferme vosgienne

Le projet tend à mettre en valeur la structure d'origine tout en relevant le defis d'apporter de la lumière naturelle dans toutes les parties de la maison.
Il s'agit ici de jouer avec les niveaux existants tout en créant un séjour cathédrale sur 6 m de hauteur autour duquel se fait la distribution des pièces, organisant une continuité de l'espace et des vues.

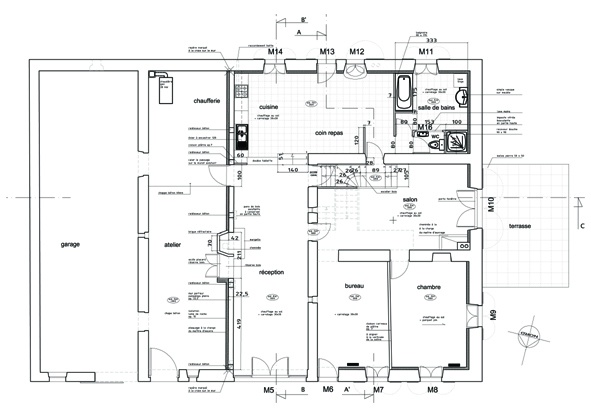
  • Réhabilitation et transformation d'une ferme vosgienne : plan RDC copie
  • Réhabilitation et transformation d'une ferme vosgienne : coupe AA copie
  • Réhabilitation et transformation d'une ferme vosgienne : coupe CC copie

    Coupe sur le salon et sur la double hauteur

  • Réhabilitation et transformation d'une ferme vosgienne : IMG_0402.JPG
  • Réhabilitation et transformation d'une ferme vosgienne : RAV005

    facade ouest avant travaux

  • Réhabilitation et transformation d'une ferme vosgienne : RAV002

    intérieur avant travaux

  • Réhabilitation et transformation d'une ferme vosgienne : IMG_0384.JPG

    intérieur après travaux, mise en valeur des encadrures de pierre existante

  • Réhabilitation et transformation d'une ferme vosgienne : image_projet_mini_22281

    facade ouest après ouverture de la baie de 4m de hauteur donnant sur le salon

  • Réhabilitation et transformation d'une ferme vosgienne : IMG_0398.JPG

    la baie en double hauteur facade ouest

  • Réhabilitation et transformation d'une ferme vosgienne : IMG_0396.JPG

    vue sur le vide central intérieur et le jardin extérieur

  • Réhabilitation et transformation d'une ferme vosgienne : image_projet_mini_22280

    mise en valeur du porche d'entrée dans la reception

  • Réhabilitation et transformation d'une ferme vosgienne : IMG_0412.JPG

    la réception en demi niveau avec la cuisine

  • Réhabilitation et transformation d'une ferme vosgienne : IMG_0410.JPG

    cuisine en L avec la réception

  • Réhabilitation et transformation d'une ferme vosgienne : IMG_0390.JPG

    la mezzanine à l'étage

  • Réhabilitation et transformation d'une ferme vosgienne : IMG_0386.JPG

    la salle de billard en mezzanine donnant sur le vide central

Trouvez un architecte pour votre projet

Protection de vos données personnelles

Depuis toujours, architectes-france.com ne transfère aucune donnée personnelle à d'autres acteurs que ceux directement concernés par le projet (architectes, architectes d'intérieur...) et qui appartiennent à son réseau. Nos listes ne sont jamais transmises ou vendues à des partenaires extérieurs, même si ceux-ci appartiennent au domaine de la construction.
Toute modification dans ce domaine ne serait effectuée qu'avec votre consentement.

Je consens à ce que mes données personnelles soient collectées pour permettre à architectes-france de transférer votre projet aux architectes. Seul Architectes-france, ses équipes internes et la maitrise d'oeuvre concernée par le projet y ont accès. Aucune transmission de données à des tiers à l'exclusion de ceux décrits ci dessus n'est réalisée.

Mes données téléphoniques seront uniquement utilisées par Architectes-france.com et les architectes de notre réseau dans le cadre de la qualification et du suivi de mon projet.

Les données sont conservées pendant une durée de 18 mois courant à partir des derniers contacts effectifs entre architectes-france et vous ou architectes-france et un membre de la maitrise d'oeuvre en rapport avec ce projet et qui serait en relation avec architectes-france.

Conformément à la loi « informatique et libertés », vous pouvez exercer votre droit d'accès aux données vous concernant et les faire rectifier en contactant : Architectes-france, 23 avenue du Mirail - parc du Mirail - 33370 Artigues-près Bordeaux. Tél. 05.47.74.51.01 - contact@architectes-france.com

Trouvez un architecte pour votre projet

Protection de vos données personnelles

Depuis toujours, architectes-france.com ne transfère aucune donnée personnelle à d'autres acteurs que ceux directement concernés par le projet (architectes, architectes d'intérieur...) et qui appartiennent à son réseau. Nos listes ne sont jamais transmises ou vendues à des partenaires extérieurs, même si ceux-ci appartiennent au domaine de la construction.
Toute modification dans ce domaine ne serait effectuée qu'avec votre consentement.

Je consens à ce que mes données personnelles soient collectées pour permettre à architectes-france de transférer votre projet aux architectes. Seul Architectes-france, ses équipes internes et la maitrise d'oeuvre concernée par le projet y ont accès. Aucune transmission de données à des tiers à l'exclusion de ceux décrits ci dessus n'est réalisée.

Mes données téléphoniques seront uniquement utilisées par Architectes-france.com et les architectes de notre réseau dans le cadre de la qualification et du suivi de mon projet.

Les données sont conservées pendant une durée de 18 mois courant à partir des derniers contacts effectifs entre architectes-france et vous ou architectes-france et un membre de la maitrise d'oeuvre en rapport avec ce projet et qui serait en relation avec architectes-france.

Conformément à la loi « informatique et libertés », vous pouvez exercer votre droit d'accès aux données vous concernant et les faire rectifier en contactant : Architectes-france, 23 avenue du Mirail - parc du Mirail - 33370 Artigues-près Bordeaux. Tél. 05.47.74.51.01 - contact@architectes-france.com