Menu
Un projet réalisé par :Haiying XIE  Architecte à Villejuif

Maison Cubique

 Villejuif - 94
Haiying XIE
Accueil Projets Maison Cubique

Achèvement

Maison Cubique

IMPLANTATION
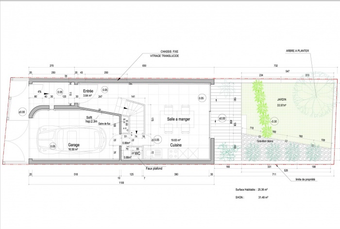
Le projet porte sur la démolition totale d'un ancien garage, avec changement d’affectation en un bâtiment à usage de maison individuelle.
Le terrain est très étroit, en dimension 5,29x18,30 m. La clé du projet est comment implanter et organiser une maison fonctionnelle.
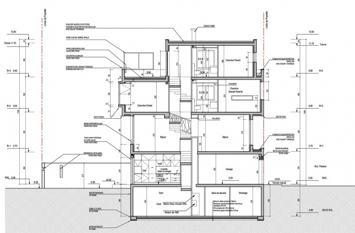
Afin de respecter le POS, le nouveau bâtiment est implanté sur un rectangle de 5,29x11, 60m à l'ouest du terrain en alignement avec le bâtiment voisin. Le nouveau bâtiment est organisé sur 4 niveaux, sa hauteur est de 12m.

PARTI ARCHITECTURAL
Pour répondre la grande rénovation contemporaine de la ville de Villejuif, Le nouveau bâtiment propose une forme contemporaine. Notre intention est de parvenir à insérer le bâtiment en répondant au mouvement de la ville et du quartier.
Ainsi, les détails architecturaux seront soignés, d'écriture presque "minimaliste" :
- généreuses baies vitrées
- larges fenêtres sur les façades
- gouttières et descentes d'eaux pluviales remplacées par des chéneaux intégrés à la toiture et invisibles depuis la rue.

TRAITEMENTS DES ESPACES VERTS
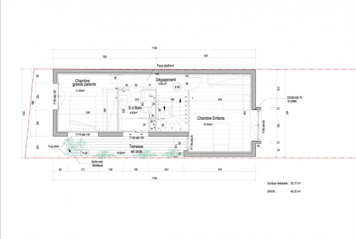
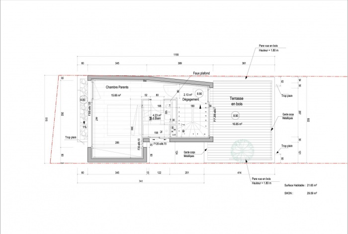
La totalité du jardin, à l'arrière de la parcelle, sera engazonnée, sur une surface de 31m². Une toiture végétalisée se situe sur R+3 et les terrasses fleuries sont implantées aux R+1 et R+2.


  • Maison Cubique : image_projet_mini_70762
  • Maison Cubique : vue nuit1
  • Maison Cubique : vue jardin
  • Maison Cubique : acces
  • Maison Cubique : patio devant
  • Maison Cubique : Entree
  • Maison Cubique : Cuisine
  • Maison Cubique : salle a manger
  • Maison Cubique : jardin
  • Maison Cubique : jardin
  • Maison Cubique : escalier
  • Maison Cubique : Sejour1
  • Maison Cubique : Sejour2
  • Maison Cubique : Sejour3
  • Maison Cubique : escalier2
  • Maison Cubique : chambre enfant
  • Maison Cubique : chambre ami
  • Maison Cubique : Salle de bain2
  • Maison Cubique : Salle de bain
  • Maison Cubique : terrasse
  • Maison Cubique : terrasse2
  • Maison Cubique : suite parentale
  • Maison Cubique : suite parentale2
  • Maison Cubique : terrasse 3
  • Maison Cubique : Salle de bain3
  • Maison Cubique : jardin rdc
  • Maison Cubique : plan masse
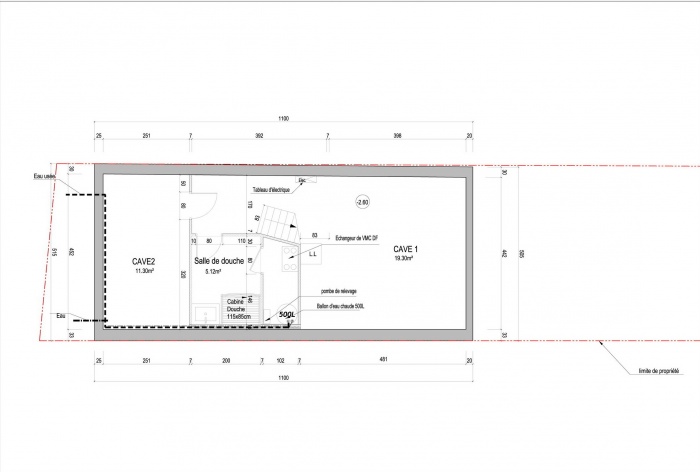
  • Maison Cubique : Sous-Sol
  • Maison Cubique : RDC
  • Maison Cubique : R+1
  • Maison Cubique : R+2
  • Maison Cubique : R+3
  • Maison Cubique : Coupe

Trouvez un architecte pour votre projet

Protection de vos données personnelles

Depuis toujours, architectes-france.com ne transfère aucune donnée personnelle à d'autres acteurs que ceux directement concernés par le projet (architectes, architectes d'intérieur...) et qui appartiennent à son réseau. Nos listes ne sont jamais transmises ou vendues à des partenaires extérieurs, même si ceux-ci appartiennent au domaine de la construction.
Toute modification dans ce domaine ne serait effectuée qu'avec votre consentement.

Je consens à ce que mes données personnelles soient collectées pour permettre à architectes-france de transférer votre projet aux architectes. Seul Architectes-france, ses équipes internes et la maitrise d'oeuvre concernée par le projet y ont accès. Aucune transmission de données à des tiers à l'exclusion de ceux décrits ci dessus n'est réalisée.

Mes données téléphoniques seront uniquement utilisées par Architectes-france.com et les architectes de notre réseau dans le cadre de la qualification et du suivi de mon projet.

Les données sont conservées pendant une durée de 18 mois courant à partir des derniers contacts effectifs entre architectes-france et vous ou architectes-france et un membre de la maitrise d'oeuvre en rapport avec ce projet et qui serait en relation avec architectes-france.

Conformément à la loi « informatique et libertés », vous pouvez exercer votre droit d'accès aux données vous concernant et les faire rectifier en contactant : Architectes-france, 23 avenue du Mirail - parc du Mirail - 33370 Artigues-près Bordeaux. Tél. 05.47.74.51.01 - contact@architectes-france.com

Trouvez un architecte pour votre projet

Protection de vos données personnelles

Depuis toujours, architectes-france.com ne transfère aucune donnée personnelle à d'autres acteurs que ceux directement concernés par le projet (architectes, architectes d'intérieur...) et qui appartiennent à son réseau. Nos listes ne sont jamais transmises ou vendues à des partenaires extérieurs, même si ceux-ci appartiennent au domaine de la construction.
Toute modification dans ce domaine ne serait effectuée qu'avec votre consentement.

Je consens à ce que mes données personnelles soient collectées pour permettre à architectes-france de transférer votre projet aux architectes. Seul Architectes-france, ses équipes internes et la maitrise d'oeuvre concernée par le projet y ont accès. Aucune transmission de données à des tiers à l'exclusion de ceux décrits ci dessus n'est réalisée.

Mes données téléphoniques seront uniquement utilisées par Architectes-france.com et les architectes de notre réseau dans le cadre de la qualification et du suivi de mon projet.

Les données sont conservées pendant une durée de 18 mois courant à partir des derniers contacts effectifs entre architectes-france et vous ou architectes-france et un membre de la maitrise d'oeuvre en rapport avec ce projet et qui serait en relation avec architectes-france.

Conformément à la loi « informatique et libertés », vous pouvez exercer votre droit d'accès aux données vous concernant et les faire rectifier en contactant : Architectes-france, 23 avenue du Mirail - parc du Mirail - 33370 Artigues-près Bordeaux. Tél. 05.47.74.51.01 - contact@architectes-france.com